Se rendre au contenu

Mouscron - Place du Tuquet - Appartement 2ch avec terrasse

Appartement 2ch avec terrasse

Prix: 89.000€

Idéalement située sur la Place du Tuquet à Mouscron, cet appartement présente un énorme potentiel !

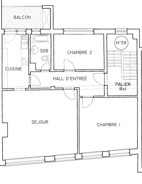
Idéal pour investisseurs : appartement lumineux de 80 m² avec terrasse plein sud de 8 m², situé dans un immeuble à structure béton avec compteurs individuels, offrant un excellent potentiel de valorisation locative.

Actuellement loué 500 €/mois à un locataire en place depuis plus de 20 ans, ce bien garantit une stabilité locative exceptionnelle.
Grâce à quelques rénovations ciblées et peu coûteuses, le loyer peut être réévalué à environ 700 €/mois, ce qui permet une nette amélioration de la rentabilité.

Caractéristiques principales :
Surface habitable : 80 m²
Terrasse plein sud de 8 m²
2 chambres
 
Électricité non conforme
Compteurs individuels
Structure en béton : construction solide et durable

Travaux malins possibles pour booster la valeur et le rendement.
Locataire stable – occupation continue depuis plus de 20 ans.

Une opportunité idéale pour investisseurs à la recherche d’un bien à faible risque avec potentiel de croissance.

Adresse : Place du Tuquet 39, Mouscron

Vente soumise aux droits d'enregistrement. 

89.000,00 € 89.000,00 €

  • Région
  • Ville
  • Type
  • Chambres
  • Salles de bain
  • Extérieur - Terrasse
  • Condition
  • Disponible
Une adresse doit être spécifiée pour qu'une carte soit intégrée

Spécifications

Région Hainaut
Ville Mouscron
Type Appartement
Chambres 2
Salles de bain 1
Extérieur Terrasse
Condition A rafraichir
Disponible Actuellement loué

Ce bien vous intéresse ?

Envoyez-nous vos informations afin que l'on vous recontacte au plus vite